Осциллограф Г... или руки кривые?
Осциллограф Г... или руки кривые?
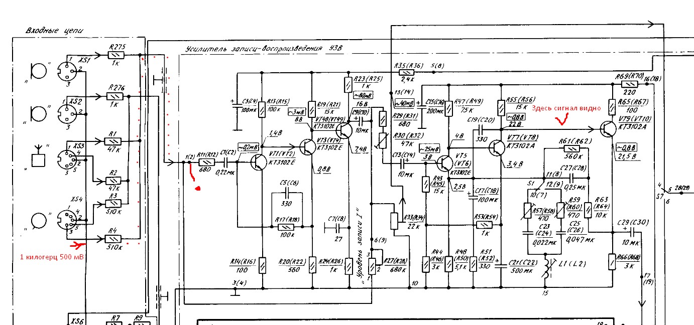
Приветствую форумчане! Столкнулся с проблемой, не могу посмотреть сигнал в 1 килогерц. Сигнал подаю на линейный вход магнитофона 1 килогерц 500 мВ, при выключенном из розетки магнитофоне сигнал осциллографом на входе усилителя вижу (на базе VT1) там он около 45 мВ, но если включить в розетку магнитофон, то сигнал не видно! Хотелось бы понять почему так происходит?
Из за этого не могу проверить прохождение по транзисторам VT1, VT3, VT48, VT5 на остальных вижу, он появляется, но проверить правильность работы предыдущих каскадов не могу.
Использую осциллограф FNIRSI 5012 давно не подходил к электронике, отвык совсем прошу помощи.
Из за этого не могу проверить прохождение по транзисторам VT1, VT3, VT48, VT5 на остальных вижу, он появляется, но проверить правильность работы предыдущих каскадов не могу.
Использую осциллограф FNIRSI 5012 давно не подходил к электронике, отвык совсем прошу помощи.
- Вложения
-
- Усилитель линейный.jpg
- (221.56 КБ) 1234 скачивания
[color=#FF0000]Тяжело в учении - тяжелей в бою![/color]
- Реклама
- АлександрЛ
- Друг Кота
- Сообщения: 43861
- Зарегистрирован: Пн ноя 30, 2009 03:00:01
- Откуда: Нерезиновая
Re: Осциллограф Г... или руки кривые?
Вообще-то,второй контакт разъёма, куда, согласно вашего рнисунка:
вы подаёте сигнал, это "ЗЕМЛЯ".. Сигнал нужно подавать на любой их используемых контактов входных разъёмов, кроме 2.
зы.. А "земляной" провод осциллографа и генератора куда у вас подключён?
Спойлер
зы.. А "земляной" провод осциллографа и генератора куда у вас подключён?
- Муркиз
- Друг Кота
- Сообщения: 25819
- Зарегистрирован: Пн фев 09, 2009 22:19:49
- Откуда: Когда-то был прекрасный город для людей
Re: Осциллограф Г... или руки кривые?
Согласно рисунка сигнал подаётся на 2 и 3 контакт разьема, и в общем, если генератор автономный, то где земля, а где сигнал, существенно будет лишь по уровню помех на входе.
Но если сигнал генератора - это сигнал калибровки самого осциллографа, то тут произойдет замыкание выхода генератора на массу, и при соединении крокодила щупа осциллографа с контактом гнезда сигнал пропадет вследствии появления коротышка выхода генератора.
Второй вариант - если генератор внешний, но его земля соеденина с землёй осциллографа, и на магнитофон идёт один провод земли обоих устройств, то будет аналогичный результат.
Но если сигнал генератора - это сигнал калибровки самого осциллографа, то тут произойдет замыкание выхода генератора на массу, и при соединении крокодила щупа осциллографа с контактом гнезда сигнал пропадет вследствии появления коротышка выхода генератора.
Второй вариант - если генератор внешний, но его земля соеденина с землёй осциллографа, и на магнитофон идёт один провод земли обоих устройств, то будет аналогичный результат.
Re: Осциллограф Г... или руки кривые?
[uquote="АлександрЛ",url="/forum/viewtopic.php?p=4745946#p4745946"]Вообще-то,второй контакт разъёма, куда, согласно вашего рнисунка:
зы.. А "земляной" провод осциллографа и генератора куда у вас подключён?[/uquote]
Да прямо с входного разъема и беру землю, поскольку она везде там общая
Вот по ссылке записал что происходит
https://disk.yandex.ru/i/naKtwJFSkHz10A
Спойлер
Да прямо с входного разъема и беру землю, поскольку она везде там общая
Вот по ссылке записал что происходит
https://disk.yandex.ru/i/naKtwJFSkHz10A
[color=#FF0000]Тяжело в учении - тяжелей в бою![/color]
- OlegO
- Сверлит текстолит когтями
- Сообщения: 1134
- Зарегистрирован: Ср дек 11, 2019 12:13:29
- Откуда: Север М.О.
Re: Осциллограф Г... или руки кривые?
Схему смотрели внимательно?
Если сигнал виден на базе Т5 ~ 25 mV
то зачем проверять всё что до него?
Там такие милливольты, что их не каждый прибор увидит!
На схеме написано база Т1 ~ 0.2 mV
далее 3 mV далее 80 mV
Если сигнал виден на базе Т5 ~ 25 mV
то зачем проверять всё что до него?
Там такие милливольты, что их не каждый прибор увидит!
На схеме написано база Т1 ~ 0.2 mV
далее 3 mV далее 80 mV
- Реклама
- Муркиз
- Друг Кота
- Сообщения: 25819
- Зарегистрирован: Пн фев 09, 2009 22:19:49
- Откуда: Когда-то был прекрасный город для людей
Re: Осциллограф Г... или руки кривые?
На эмиттере VT9 уровень должен быть 800 мВ.
С 10 мВ прибор уже сигнал видит.
С 10 мВ прибор уже сигнал видит.
Re: Осциллограф Г... или руки кривые?
[uquote="Муркиз",url="/forum/viewtopic.php?p=4746044#p4746044"]На эмиттере VT9 уровень должен быть 800 мВ.
С 10 мВ прибор уже сигнал видит.[/uquote]
Да, спасибо. Невнимательность моя, смотрю в книгу, вижу фигу а у меня там 500 мВ, вот и не понятно где он падает. Попробую канеш покрутить R30 если хватит его регулировки
С 10 мВ прибор уже сигнал видит.[/uquote]
Да, спасибо. Невнимательность моя, смотрю в книгу, вижу фигу а у меня там 500 мВ, вот и не понятно где он падает. Попробую канеш покрутить R30 если хватит его регулировки
[color=#FF0000]Тяжело в учении - тяжелей в бою![/color]
Re: Осциллограф Г... или руки кривые?
[uquote="OlegO",url="/forum/viewtopic.php?p=4746015#p4746015"]Там такие милливольты, что их не каждый прибор увидит!
На схеме написано база Т1 ~ 0.2 mV
далее 3 mV далее 80 mV[/uquote]
Ну получается, что такой мизерный сигнал этим осциллографом не посмотреть из-за того, что его перекрывает питание базы и коллектора, так? Поэтому я его не вижу? Интересно, каким таким прибором его видно будет?
На схеме написано база Т1 ~ 0.2 mV
далее 3 mV далее 80 mV[/uquote]
Ну получается, что такой мизерный сигнал этим осциллографом не посмотреть из-за того, что его перекрывает питание базы и коллектора, так? Поэтому я его не вижу? Интересно, каким таким прибором его видно будет?
[color=#FF0000]Тяжело в учении - тяжелей в бою![/color]
- OlegO
- Сверлит текстолит когтями
- Сообщения: 1134
- Зарегистрирован: Ср дек 11, 2019 12:13:29
- Откуда: Север М.О.
Re: Осциллограф Г... или руки кривые?
Вы "фиговый листок" на свой "осциллограф FNIRSI 5012 " читали ?
Если нет, то почитайте https://static.chipdip.ru/lib/396/DOC037396448.pdf
С давних времён пользовал такой https://habr.com/ru/companies/ruvds/art ... 9615491994
0.1 мВ видел с головки кассетного точно.
Если нет, то почитайте https://static.chipdip.ru/lib/396/DOC037396448.pdf
С давних времён пользовал такой https://habr.com/ru/companies/ruvds/art ... 9615491994
0.1 мВ видел с головки кассетного точно.
Re: Осциллограф Г... или руки кривые?
[uquote="OlegO",url="/forum/viewtopic.php?p=4746257#p4746257"]Вы "фиговый листок" на свой "осциллограф FNIRSI 5012 " читали ?
Если нет, то почитайте https://static.chipdip.ru/lib/396/DOC037396448.pdf
С давних времён пользовал такой https://habr.com/ru/companies/ruvds/art ... 9615491994
0.1 мВ видел с головки кассетного точно.[/uquote]
Ну да, ваш почувствительней будет. Я когда свой брал особо и не разбирался в этом, естественно инструкции уже давно нет. Получается если у моего одна клетка 50 милливольт, то и не должно быть ничего видно если сигнал 0,2 мВ.
Если нет, то почитайте https://static.chipdip.ru/lib/396/DOC037396448.pdf
С давних времён пользовал такой https://habr.com/ru/companies/ruvds/art ... 9615491994
0.1 мВ видел с головки кассетного точно.[/uquote]
Ну да, ваш почувствительней будет. Я когда свой брал особо и не разбирался в этом, естественно инструкции уже давно нет. Получается если у моего одна клетка 50 милливольт, то и не должно быть ничего видно если сигнал 0,2 мВ.
[color=#FF0000]Тяжело в учении - тяжелей в бою![/color]
- OlegO
- Сверлит текстолит когтями
- Сообщения: 1134
- Зарегистрирован: Ср дек 11, 2019 12:13:29
- Откуда: Север М.О.
Re: Осциллограф Г... или руки кривые?
Мой старенький Н313 сделанный 45 лет назад 1мВ на деление видел
https://rw6ase.narod.ru/index1/pribor/o ... /n313.html
https://rw6ase.narod.ru/index1/pribor/o ... /n313.html


